35
$455,000 Sale
Listed 3 hours ago
649 LLOYD Street
· 2+1
· 2
· 0
· 700-1100
Listing History
Buy/Sell/Terminated/Expired listing history for 649 LLOYD Street
Key Facts
Key facts for 649 LLOYD Street
Property Type
House, Bungalow
Parking
None 0 garage, 4 parking
MLS #
X12461236
Size
700-1100 sqft
Basement
Finished,Full
Listed on
2025-10-14
Lot size
42 x 114.43
Tax
$2,929.28 /yr
Days on Market
1
Approximate Age
31-50
Maintenance Fee
-
Description
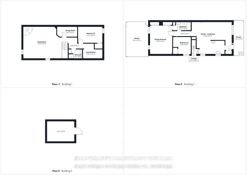
Don't miss out on this amazing opportunity! This immaculately maintained semi-detached home boasts a spacious 1,900 sq. ft. of living space spread over two levels, making it an ideal option for first-time buyers, retirees, or as an income property. Located just a short stroll away from Walmart, the ...new LCBO, and a host of other local amenities, this property is perfectly situated. The home sits on a generous corner lot, providing an expansive double-wide concrete laneway, ample green space, and both front and back decks. Step inside the front door to discover a practical layout on the main floor, featuring a bright and airy living room, a sleek and tidy galley kitchen complete with a coffee bar for storage, two bedrooms, and a four-piece bathroom. The finished lower level offers endless possibilities, currently consisting of a spacious rec room, a third bedroom, a three-piece bathroom, laundry facilities, and additional storage. With a separate entrance, this lower level could easily be converted into a separate unit, thanks to the R2 zoning. The home features a combination of ductless heating and cooling, a natural gas fireplace, and baseboard heating, with a new roof installed in 2018. The sand-point well system ensures that the lawn is always looking its best, while the detached shed offers additional storage space. This turn-key home is the one you've been waiting for!
Similar Properties (No results)
Courtesy of: Royal LePage Exchange Realty Co.